Descripción general
- Casa
- 7
- 4
- 1
- 583 M2
- 6997716
Descripción
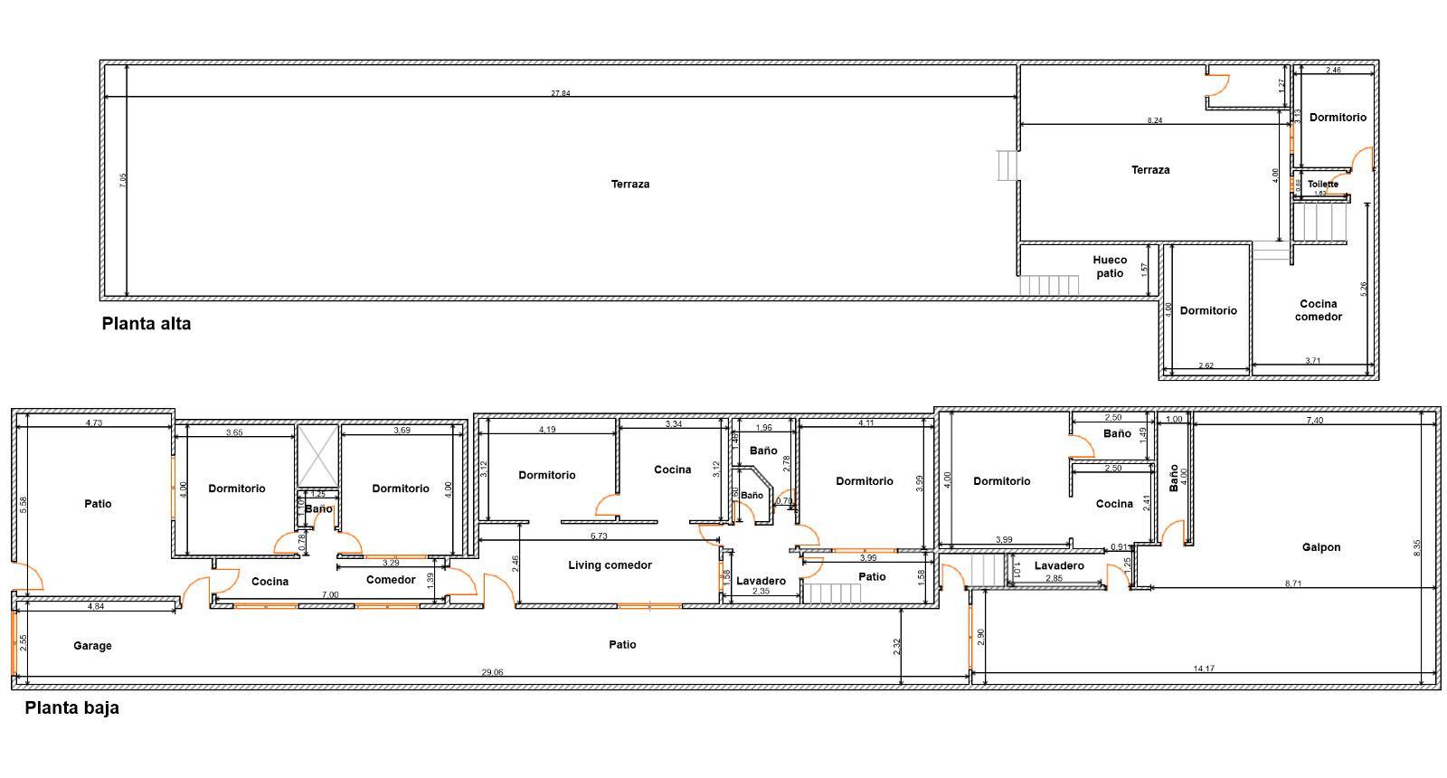
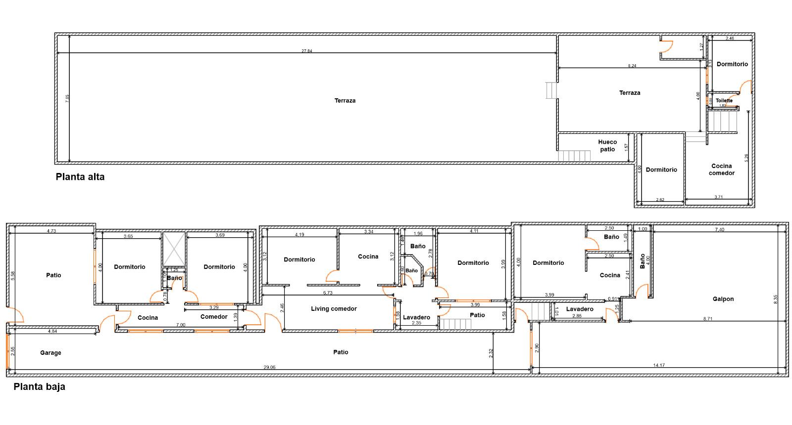
VENTA – CASA TIPO PH – MULTIFAMILIAR – 10 AMBIENTES – AMPLIA TERRAZA- GALPON – PATERNAL
¿Buscás espacio, independencia y múltiples posibilidades? Esta propiedad es para vos.
Construida sobre un lote de 8.66 x 46.42, cuenta con CINCO (5) unidades funcionales totalmente independientes, ideales para familias grandes, renta, o reconversión a emprendimiento.
Además, suma una terraza de más de 200 m², garage, y un gran galpón al fondo, perfecto para depósito, taller o espacio de trabajo.
Detalles
Subida en febrero 9, 2026 at 5:59 pm-
ID de propiedad 6997716
-
Precio US$310.000
-
Superficie total 583 M2
-
Dormitorios 7
-
Ambientes 10
-
Baños 4
-
Garage 1
-
Año de construcción 1976
-
Tipo de propiedad Casa
-
Estado de la propiedad Venta
-
Código de referencia MPH6997716
-
Edad de la propiedad 50
Detalles adicionales
-
Plantas 2
-
Medio baño 2
Información de contacto
Ver listadoPropiedades similares
- mfarias94@live.com.ar














































