Descripción general
- Departamento
- 3
- 2
- 1
- 164 M2
- 6734686
Descripción
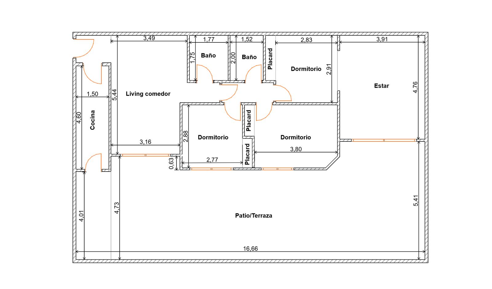
VENTA – DEPARTAMENTO – 5 AMBIENTES – COCHERA – PATIO – NUÑEZ
Descubrí este hermoso departamento de 5 ambientes en pleno Nuñez! esta propiedad combina diseño moderno, comodidad y espacios amplios para disfrutar en familia, ademas cuenta con excelente luminosidad, ubicación con fácil acceso hacia todo buenos aires
Características:
• Living comedor amplio y luminoso.
• Cocina independiente con muebles y equipamiento nuevos.
• Tres dormitorios de generosas dimensiones, con placares empotrados.
Detalles
Subida en febrero 9, 2026 at 5:59 pm-
ID de propiedad 6734686
-
Precio US$289.000
-
Superficie total 164 M2
-
Dormitorios 3
-
Ambientes 5
-
Baños 2
-
Garage 1
-
Año de construcción 1976
-
Tipo de propiedad Departamento
-
Estado de la propiedad Venta
-
Código de referencia MAP6734686
-
Edad de la propiedad 50
Información de contacto
Ver listadoPropiedades similares
- mfarias94@live.com.ar


















































