Descripción general
- Departamento
- 3
- 1
- 120 M2
- 7316466
Descripción
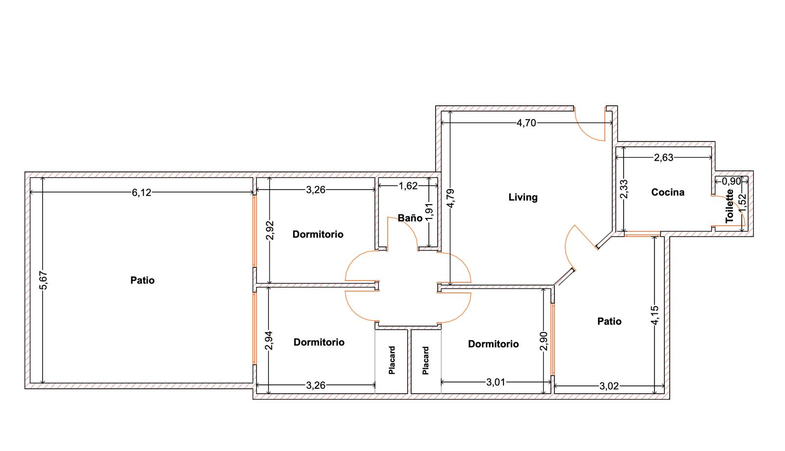
VENTA – DEPARTAMENTO – 4 AMBIENTES – PATIO CON JARDÍN – APTO CRÉDITO
¡Oportunidad única en pleno Palermo! Departamento de 4 ambientes con patio y jardín – Apto profesional y crédito.
Ubicado sobre Charcas y Gurruchaga, en el corazón vibrante de Palermo Soho, este espectacular departamento de planta baja combina la comodidad de una casa con la practicidad de vivir en una de las zonas más codiciadas de la ciudad.
Características destacadas:
Detalles
Subida en febrero 9, 2026 at 5:59 pm-
ID de propiedad 7316466
-
Precio US$190.000
-
Superficie total 120 M2
-
Dormitorios 3
-
Ambientes 4
-
Baño 1
-
Año de construcción 1996
-
Tipo de propiedad Departamento
-
Estado de la propiedad Venta
-
Código de referencia MAP7316466
-
Edad de la propiedad 30
Detalles adicionales
-
Plantas 7
-
Medio baño 1
Información de contacto
Ver listadoPropiedades similares
- mfarias94@live.com.ar


























