Descripción general
- Departamento
- 1
- 1
- 1
- 69 M2
- 7647694
Descripción
VENTA DEPARTAMENTO 2 AMBIENTES CON PATIO Y COCHERA FIJA CUBIERTA ZONA ALTO PALERMO
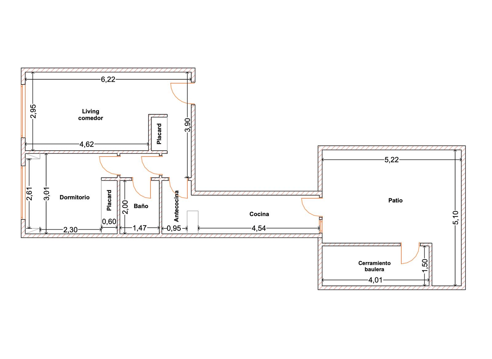
Venta departamento 2 ambientes ubicado en planta baja con patio y cochera fija cubierta. Refaccionado recientemente, con detalles de calidad, listo para mudarse de inmediato.
Distribución:
– Cocina independiente amplia y moderna a gas
– Dormitorio principal con placard empotrado.
– Segundo dormitorio con placard empotrado.
– Patio amplio, con un invernadero.
– Pasillo con placard empotrado.
Ubicado en el barrio de Palermo. La zona ofrece excelente ubicación cerca de grandes facultades, restaurantes. Shopping alto Palermo y excelente conexión a unas cuadras de línea D de subte.
MATRÍCULA CUCICBA 5051
GRUPO MARTING
Detalles
Subida en febrero 9, 2026 at 5:58 pm-
ID de propiedad 7647694
-
Precio US$150.000
-
Superficie total 69 M2
-
Superficie del terreno 69
-
Dormitorio 1
-
Ambientes 2
-
Baño 1
-
Garage 1
-
Año de construcción 1976
-
Tipo de propiedad Departamento
-
Estado de la propiedad Venta
-
Código de referencia MAP7647694
-
Edad de la propiedad 50
Información de contacto
Ver listadoPropiedades similares
- mfarias94@live.com.ar





























