Descripción general
- PH
- 3
- 2
- 1
- 192 M2
- 7748516
Descripción
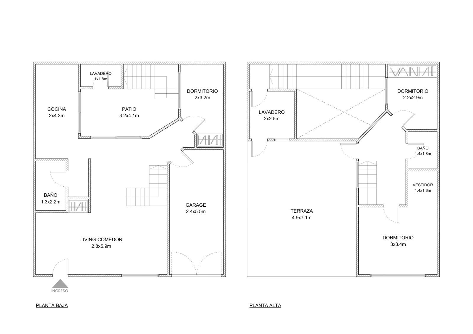
VENTA PH 4 AMBIENTES CON GARAGE Y TERRAZA VILLA LURO
Se trata de una propiedad sólida y funcional, ideal para familias que buscan amplitud y la independencia de un PH sin expensas. Ubicada en una zona estratégica del barrio, combina la tranquilidad de sus calles arboladas con la cercanía a importantes focos comerciales y de transporte.
Distribución por plantas:
Planta Baja:
Ingreso: Amplio garage cubierto con espacio cómodo para un vehículo.
Detalles
Subida en febrero 9, 2026 at 5:58 pm-
ID de propiedad 7748516
-
Precio US$220.000
-
Superficie total 192 M2
-
Dormitorios 3
-
Ambientes 4
-
Baños 2
-
Garage 1
-
Año de construcción 1981
-
Tipo de propiedad PH
-
Estado de la propiedad Venta
-
Código de referencia MPH7748516
-
Edad de la propiedad 45
Información de contacto
Ver listadoPropiedades similares
- mfarias94@live.com.ar








































