Descripción general
- PH
- 4
- 2
- 180 M2
- 7527614
Descripción
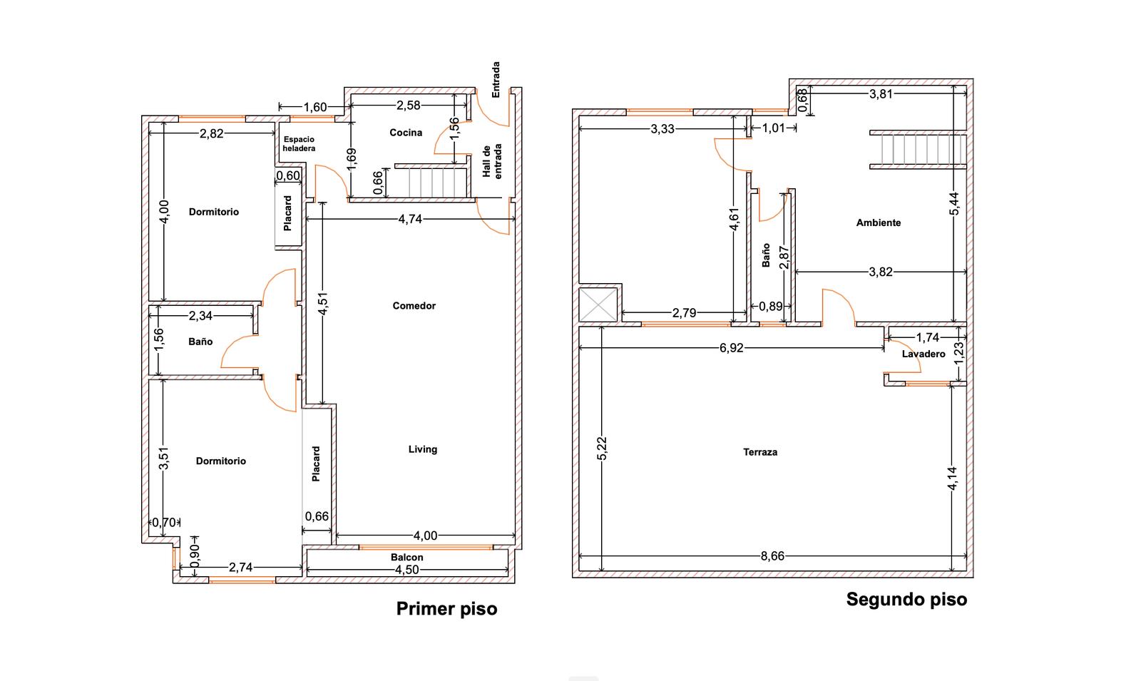
VENTA PH 5 AMBIENTES CON BALCÓN TERRAZA PROPIA CON PARRILLA LAVADERO APTO CRÉDITO BARRIO NORTE
Imperdible PH en Barrio Norte (límite Recoleta/Palermo) en primer piso por escalera, súper luminoso y con una terraza propia de 70 m² con parrilla, ideal para reuniones, disfrute familiar y aire libre. La propiedad se desarrolla en dúplex, con acceso por escalera común y una escalera interna desde la cocina que conecta con el segundo nivel.
Detalles
Subida en febrero 9, 2026 at 5:59 pm-
ID de propiedad 7527614
-
Precio US$230.000
-
Superficie total 180 M2
-
Dormitorios 4
-
Ambientes 5
-
Baños 2
-
Año de construcción 1966
-
Tipo de propiedad PH
-
Estado de la propiedad Venta
-
Código de referencia MPH7527614
-
Edad de la propiedad 60
Detalles adicionales
-
Plantas 2
Información de contacto
Ver listadoPropiedades similares
- mfarias94@live.com.ar







































