Descripción general
- Departamento
- 2
- 1
- 70 M2
- 7567150
Descripción
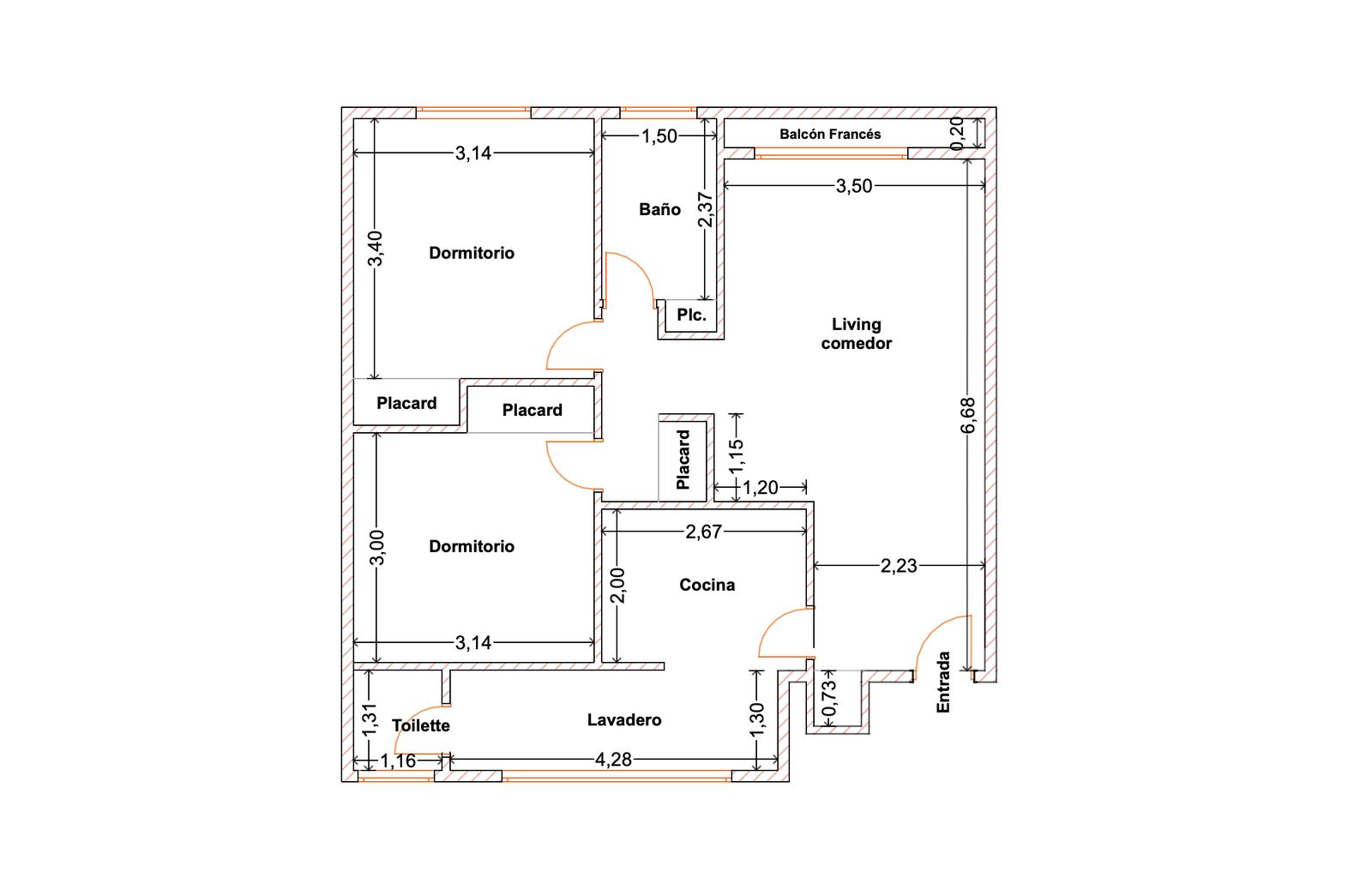
VENTA RECOLETA DEPARTAMENTO 3 AMBIENTES CONTRAFRENTE APTO CRÉDITO
Departamento de 3 ambientes de 70 m2, muy luminoso, situado en un 3er piso al contrafrente dentro de esta privilegiada ubicación de Recoleta.
Distribución:
• Living-comedor amplio con ventanal hacia contrafrente abierto.
• 2 Dormitorios con placard.
• Cocina independiente.
• Lavadero.
• Baño completo con bañera.
• Toilette.
Ubicación: La zona ofrece una amplia variedad de cafés, restaurantes, zonas verdes y de interés cultural. En cuanto a movilidad, cuenta con múltiples líneas de colectivos y rápido acceso a la Línea D del subte, facilitando la conexión con cualquier punto de la ciudad. Además, su cercanía a importantes avenidas como Pueyrredón, Coronel Díaz y Santa Fe agrega fluidez y comodidad en los traslados. Una ubicación estratégica, práctica y con todo lo necesario para la vida de calidad que buscas.
GRUPO MARTING INMOBILIARIA
MARCELINO PIÑEIRO
MATRICULA CUCICBA N.º 5051
Detalles
Subida en febrero 9, 2026 at 5:59 pm-
ID de propiedad 7567150
-
Precio US$173.000
-
Superficie total 70 M2
-
Dormitorios 2
-
Ambientes 3
-
Baño 1
-
Año de construcción 1986
-
Tipo de propiedad Departamento
-
Estado de la propiedad Venta
-
Código de referencia MAP7567150
-
Edad de la propiedad 40
Detalles adicionales
-
Medio baño 1
Información de contacto
Ver listadoPropiedades similares
- mfarias94@live.com.ar





























