Descripción general
- PH
- 2
- 1
- 57 HA
- 7394566
Descripción
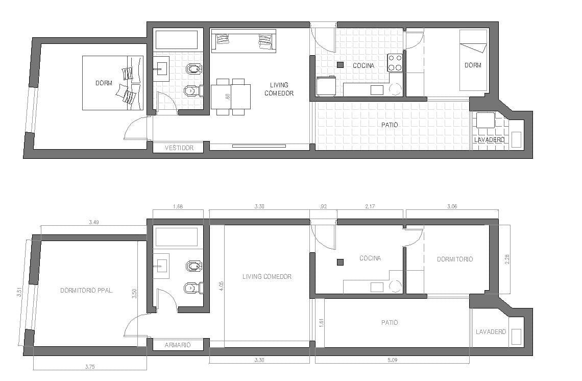
VENTA – PH – 3 AMBIENTES – CONSTITUCIÓN – PATIO – LUMINOSO – APTO CRÉDITO
La propiedad se encuentra remodelada, con instalaciones de agua, gas y electricidad completamente renovadas, en un edificio tranquilo de expensas bajas, con un hermoso patio ideal para disfrutar momentos al aire libre.
ES APTO CREDITO
Distribución:
• Living con entrada de luz natural que proviene del patio.
• Cocina independiente modernizada.
• Primer dormitorio principal ofrece excelente ventilación, placard.
Detalles
Subida en febrero 9, 2026 at 5:59 pm-
ID de propiedad 7394566
-
Precio US$59.000
-
Superficie total 57 HA
-
Dormitorios 2
-
Ambientes 3
-
Baño 1
-
Año de construcción 1966
-
Tipo de propiedad PH
-
Estado de la propiedad Venta
-
Código de referencia MAP7394566
-
Edad de la propiedad 60
Detalles adicionales
-
Plantas 1
Características
- Agua Corriente
- Agua Potable
- Alumbrado público
- Apto mascotas
- Cable
- Cerramientos de PVC
- Cloaca
- Cocina
- Electricidad
- Escritorio
- Escritura inmediata
- Gas Natural
- Internet
- Lavadero
- Lavandería
- Luminoso
- Oficina
- Patio
- Pavimento
- Permuta
- Potencial alto para alquilar
- Teléfono
- Termotanque Individual
- Terraza
- Ventanas doble acristalamiento
- WiFi
Información de contacto
Ver listadoPropiedades similares
- mfarias94@live.com.ar
























