Descripción general
- PH
- 2
- 2
- 121 M2
- 7555470
Descripción
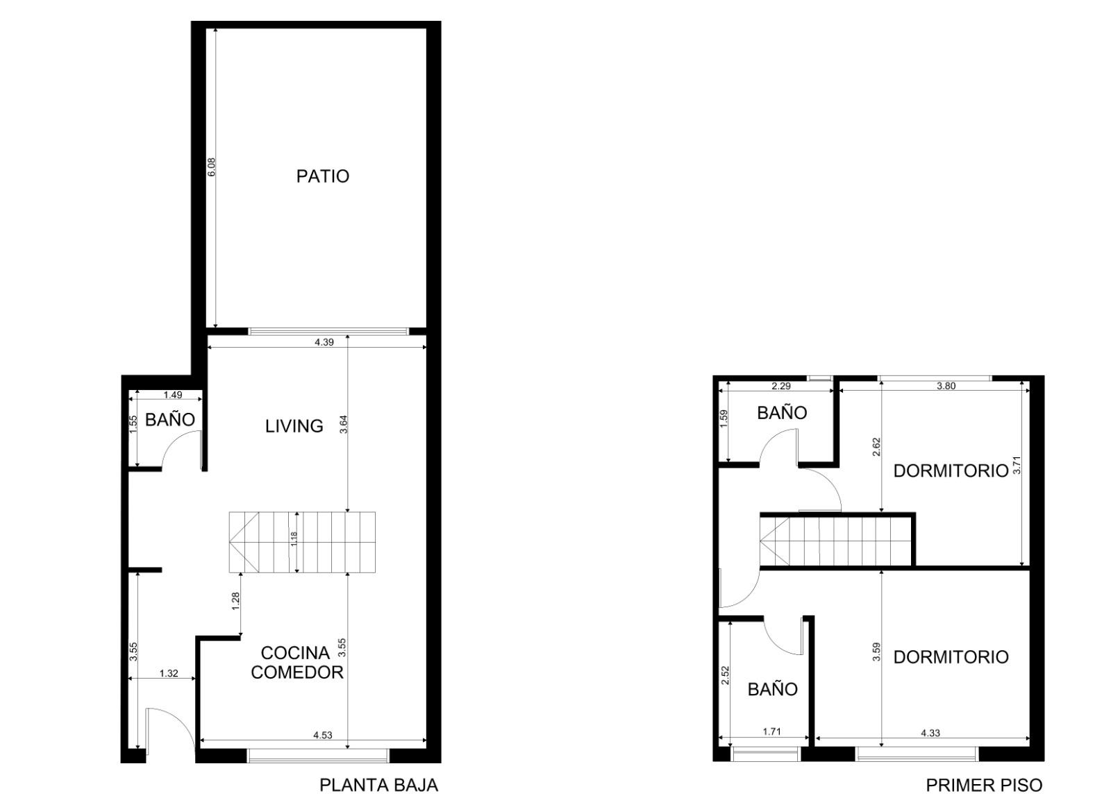
VENTA PH TIPO CASA DE 3 AMBIENTES CON PATIO SIN EXPENSAS VILLA GENERAL MITRE
Descubrí este moderno PH tipo casa en construcción con entrada independiente de 3 ambientes, ubicado en una tranquila cuadra de Pablo Curatella Manes al 1900, a metros de La Paternal y con excelente accesibilidad a comercios, supermercados, plazas, transporte y servicios.
La unidad se desarrolla en dos plantas y se destaca por su diseño funcional y luminoso.
Características principales:
Detalles
Subida en febrero 9, 2026 at 5:59 pm-
ID de propiedad 7555470
-
Precio US$225.000
-
Superficie total 121 M2
-
Superficie del terreno 121
-
Dormitorios 2
-
Ambientes 3
-
Baños 2
-
Tipo de propiedad PH
-
Estado de la propiedad Venta
-
Código de referencia MPH7555470
Detalles adicionales
-
Plantas 2
-
Medio baño 1
Información de contacto
Ver listadoPropiedades similares
- mfarias94@live.com.ar






































